MY PROJECTS

TRANSITIONAL KITCHEN

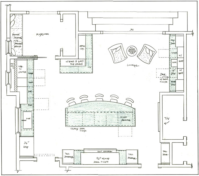
3 -Magnificent on the Sound

There are several leading cast members in this
very large and sophisticated kitchen: a custom-designed Bendheim glass backsplash behind the restaurant-quality Bluestar range, an 11-foot long island with a full-slab quartzite top, and a sexy
bar area fully-equipped, well-lit, and ready for entertaining.

The cabinetry is both white painted and dark-stained cherry in a Merlot stain that has a hint of red. There are distinct, separate zones for cooking, hanging-out at the bar, prep-work, and clean-up.

 

Architect: Steve Secon