MY PROJECTS

TRADITIONAL/COUNTRY KITCHEN

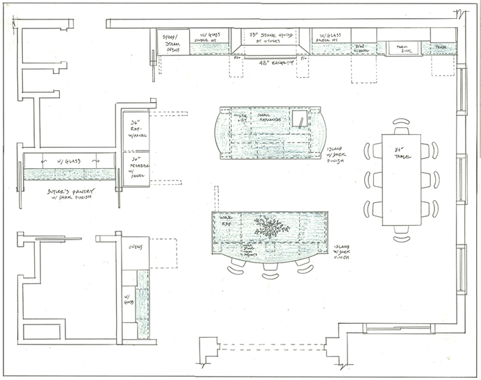
6 -Country Villa

This grand home is based on French architecture
of the 1800’s. There is a lot of detail with the two cabinet finishes, two islands, corbels, valances, different heights of wall cabinetry, glass inserts and the large limestone hood. Though it has a fancy appearance, this is one hard-working kitchen for
a very busy family.